Lysnes

OM LYSNES
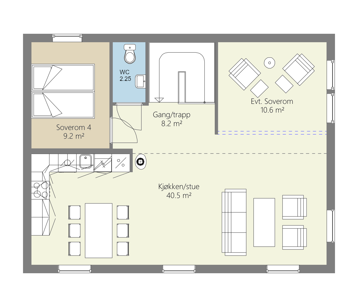
Lysnes er en moderne og praktisk enebolig over to plan. Funksjonelle løsninger gjør at du får muligheten for opp til fem soverom, stor stue og kjøkken til en budsjettvennlig pris. Den lyse og innbydende stuen gjør Lysnes til et naturlig samlingspunkt når storfamilien skal møtes.
INFO
| Bruksareal bolig | 144 m2 |
| Bruksareal total | 144 m2 |
| BYA | 81 m2 |
| P-ROM | 134 m2 |
| Lengde / bredde | 10,2 / 7,8 m |
| Soverom | 4-5 |
| Bad / bod | 1 / 2 |
| Walk-in closet | 1 |
| Eget vaskerom | Nei |
| Tomt | Flat |
| Gesimshøyde | 565 cm |
| Mønehøyde | 764 cm |
PLANTEGNING
![]() |
![]() |
FASADETEGNING
![]() |
![]() |
![]() |
![]() |






