Elvemo


om elvemo
Elvemo er et av våre mest praktiske og fleksible hus. Det er kanskje derfor det er en av våre bestselgere. Enten du har behov
for 3 soverom, kontor, eller medierom, er Elvemo et godt alternativ for deg. Elvemo er både hjemmekoselig, romslig og
innbydende, og passer godt både for enslige, små og store familier.
info
| Bruksareal bolig | 99 m2 |
| Bruksareal total | 99 m2 |
| BYA | 109 m2 |
| P-ROM | 91 m2 |
| Lengde / bredde | 12, 6 x 8,5 m |
| Soverom | 3 |
| Bad / bod | 1 / 1 |
| Walk-in closet | 0 |
| Eget vaskerom | Nei |
| Tomt | Flat |
| Gesimshøyde | 286 cm |
| Mønehøyde | 501 cm |
plantegning
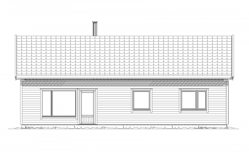
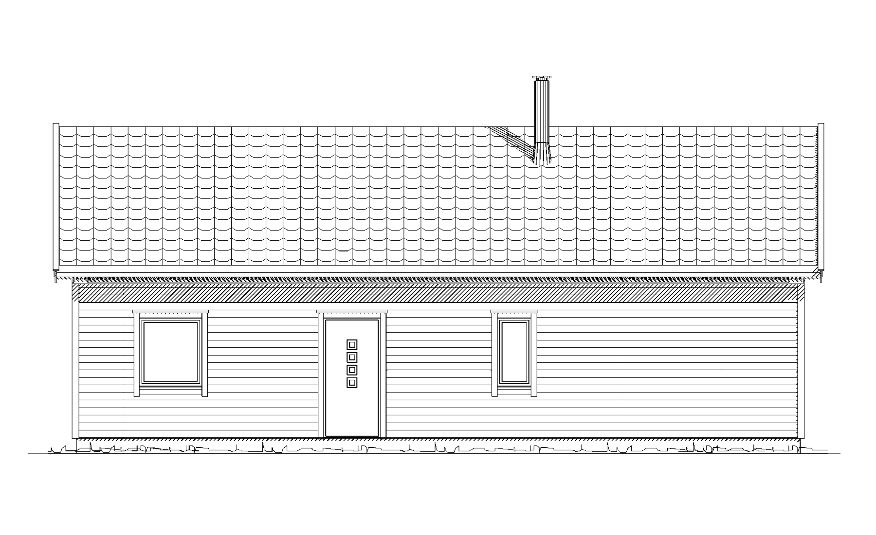
fasadetegning
![]() |
![]() |
![]() |
![]() |




