Sollia


OM SOLLIA
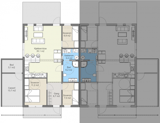
Sollia er en fleksibel og moderne tomannsbolig, med egen carport til hver leilighet. Lys, åpen, praktisk, og stilfull. Alt i alt et godt alternativ for de aller fleste.
INFO
| Bruksareal | 174 m2 |
| BYA | |
| P-ROM | 164 m2 |
| Lengde / bredde | 21,6 x 11,4 m |
| Antall soverom | 3 per leilighet |
| Bad / bod | 1 / 1 per leilighet |
| Walk-in closet | Nei |
| Eget vaskerom | Ja |
| Gesimshøyde - lav | 300 cm |
| Gesimshøyde - høy | 380 cm |
PLANTEGNING
![]() |
fasadetegning
![]() |
![]() |
![]() |
![]() |





